產品中心
PRODUCT CENTER
聯系我們
Contact us
鞏義市新華豐管道設備有限公司
固 話:0371-64033589
手 機:18638168566 13783416000
13683712868 13838577194
聯系人:王先生,魏女士
Q Q:1622356298
旺 旺:gyhuafeng
微 信:wei13683712868
網 址:http://www.169kongjian.cn/
地 址:河南省鞏義市西村開發區永安路南段211號
【廠家品質】不銹鋼防水套管華豐為您提供安裝技術及詳細圖紙說明
今天的學習內容呢我們還是來看防水套管,因為鞏義新華豐是生產防水套管十余年的廠家, 產品質量牢靠,性能穩定,得到新老客戶的一致贊揚和肯定。新華豐防水套管可按客戶定制各種類型,今天我們就接著來了解一下不銹鋼防水套管,一下內容是由新華豐為您提供的不銹鋼防水套管安裝技術說明及詳細的圖紙應用學習,希望對大家有所幫助。
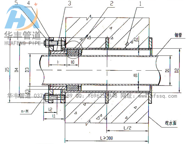
不銹鋼防水套管用于管道穿墻處不承受管道振動和伸縮變形的構(建)筑物,適用于管道穿墻處空間有限或管道安裝先于構(建)筑物或管道的更新改造。對于有地震設防要求的地區,如采用剛性防水套管,應在進入池壁或建筑物外墻的管道上就近設置柔性連接。A型適用于鋼管,B,C型適用于球墨鑄鐵鋼管及鑄鐵管。
不銹鋼防水套管說明:
1 、剛性防水套管,適用于鑄鐵管,也適用于非金屬管,但應根據采用管材的管壁厚度修正有關尺寸。
2 、翼環及鋼套管加工完成后,在其外壁均刷底漆一遍(底漆包括樟丹或冷底子油)。
3 、套管尺寸表內所列之材料重量為鋼套管(套管長度L 值按200mm 計算)及翼環之重量。鋼套管及翼環用A3 材料制作,T42 焊條焊接。
4 、套管穿墻處之墻壁,如遇非混凝土墻壁時應改用混凝土墻壁,其澆注混凝土范圍,Ⅱ型套管應比翼環直徑(D4 )大200mm ,而且須將套管一次澆固于墻內。套管內的填料應緊密搗實。
5 、防水套管處的混凝土墻厚,應不小于200mm ,否則應使墻壁一邊或兩邊加厚,加厚部分的直徑,小應比翼環直徑(D4 )大200mm .

不銹鋼防水套管CAD圖紙詳細說明:

我們公司將繼續以客戶和市場為導向,做好的防水套管,讓客戶滿意放心,讓客戶大膽用,放心用,一直用。 歡迎進入鞏義市新華豐管道設備有限公司官網:http://www.169kongjian.cn/ 聯系電話:0371-64033589 聯系人:位經理18638168566 王經理13783416000(本文章來自百度百科百度文庫等摘要)









